
Revista Andina de Educación 8(1) (2024) 000801
The Opportunity of Inserting Volunteering into University Education in Architecture: Experience of Two Projects in Lunsar, Sierra Leone
Oportunidad de inserción del voluntariado en la educación universitaria en arquitectura: Experiencia de dos proyectos en Lunsar, Sierra Leona
Ainhoa Maruri Aranaa 
, María Teresa Pérez Canoa 

a University of Seville, Department of Urbanism and Territorial Planning. Avenida Reina Mercedes 2, 3rd Floor, 41012, Seville, Spain.
Received on June 7, 2024. Accepted on September 13, 2024. Published on November 4, 2024
© 2024 Maruri & Pérez. CC BY-NC 4.0
https://doi.org/10.32719/26312816.2024.8.1.1
Abstract
The central element of this work is volunteering linked to university education in Architecture. With it, this study seeks to highlight the benefits of including voluntary work in the field of higher formal education, specifically in the discipline of university teaching in Architecture, since they offer reflections and experiences that could improve the quality of the School, training more qualified professionals. As an example of this, two international volunteering experiences are presented in Lunsar, Sierra Leone, which have allowed participants to leave the national university context by putting theoretical knowledge into practice while helping the community and recognizing the potential of their knowledge and local techniques. The study concludes that the inclusion of volunteering in university training in architecture can serve as a form of educational innovation, introducing students to real-world needs related to their future profession.
Keywords: education in architecture, volunteer projects, cooperation experience, Lunsar
Resumen
El presente trabajo pone el foco en el voluntariado ligado a la educación universitaria en arquitectura. Con él, se busca dejar constancia de los beneficios que aporta incluir trabajos voluntarios en el ámbito de la educación formal superior, concretamente en el ámbito de las enseñanzas universitarias en arquitectura, ya que ofrecen reflexiones y experiencias que podrían mejorar la calidad de la escuela, para formar profesionales más capacitados. Como ejemplo, se presentan dos experiencias de voluntariado internacional en Lunsar, Sierra Leona, que permitieron salir del contexto universitario nacional y poner en práctica los conocimientos teóricos, a la vez que se ayudaba a la comunidad receptora y se reconocía el potencial de sus saberes y técnicas locales. Se concluye que la inclusión del voluntariado por parte de las universidades en la formación en arquitectura puede suponer una forma de innovación docente, al introducir al estudiante en el contexto de las necesidades reales vinculadas a la futura profesión.
Palabras clave: educación en arquitectura, proyectos de voluntariado, experiencia en cooperación, Lunsar
Introducción
In 2001, the International Year of Volunteers was proclaimed after the Universal Declaration on Volunteering was held in Amsterdam (IAVE, 2001). This marked a growing awareness of the importance of promoting civic engagement in social construction across various domains and involving participants from a wide age range (Martínez Odría, 2003). Particularly noteworthy is the involvement of youth, as they represent the future, in volunteering experiences whose educational contributions have yet to be fully explored.
Youth education should transform to address social, environmental, and economic issues with sustainable solutions and alternatives, guided by innovative, integrative pedagogy involving all educational stakeholders. The 2030 Agenda and its 17 Sustainable Development Goals (SDGs) view education as essential for achieving global objectives (Government of Spain, 2018). Aligned with this, volunteerism within education emerges as a local engagement proposal directed towards sustainability and environmental protection, driven by a strong educational commitment to fulfilling the 2030 Agenda (Rodas, 2021).
It is essential to transform the educational model into a tool that guides individuals towards more responsible and sustainable lifestyles, instilling ethical awareness and responsibility. In this sense, it would be worthwhile to include civic participation through volunteering as part of the educational experience. Volunteering is a form of action deeply committed to individuals and provides a medium for reflection on all thematic areas of the SDGs (UNESCO, 2017). The university, as an institution, cannot be disconnected from the achievement of the SDGs, as it plays an important role in this process (Goycoolea & Megías, 2017).
Specifically, university volunteering is an emerging topic in the relationship between learning and service. This article focuses on volunteering within university education, which, besides having a favorable impact on the local community of the host area, positively influences students’ learning. Working directly on certain competencies for their future profession, students engage in a hands-on methodology during the experience, which helps generate critical reflections and promotes improvements in ways of living (Rodas, 2021).
However, current market-driven education often trains professionals without imparting values complementary to classroom knowledge (Carazzone, 2013). In university studies related to architecture, volunteer work becomes even more significant, as it allows immediate service to communities and their inhabitants. Volunteers become aware of issues and needs generated by globalization or megacities, where the right to housing is often violated. This work could provide additional practical learning that is not currently offered by universities; it allows students to leave the university confines, which in some cases isolate a significant part of the learning process.
Volunteering and Education
After the 2020 pandemic, the importance of volunteers as agents of change was emphasized worldwide, generating hope and resilience, improving lives, and strengthening communities (García & Chavarría, 2020). The definition of volunteering is broad (United Nations Volunteers, 2022), and this article will use the definition from the Universal Declaration of the International Association for Volunteer Effort:
“Volunteering is a fundamental building block of civil society. It brings to life the noblest aspirations of humankind – the pursuit of peace, freedom, opportunity, safety, and justice for all people.” (IAVE, 2001, para. 1)
As proposed by the Action Plan to Integrate Volunteering into the 2030 Agenda, the volunteering model is based on five components: structure, location, frequency, motivation, and category, defined from a broad perspective (United Nations Volunteers, 2020).
Volunteering practices occur worldwide, and their modalities can be diverse and free-form; sometimes, their main goal is not the impact on third parties or the general public. Generally, volunteer work provides numerous benefits, including social cohesion, job creation, the expansion of networks and social connections — generating significant social capital — and the exchange of knowledge. It is not purely altruistic, as it is recognized that everyone benefits. These benefits are even more pronounced for young people, who acquire positive qualities and habits they will maintain throughout their lives (Bernal, 2001).
The year 2011 was the European Year of Volunteering, which marked the beginning of efforts to understand and recognize the competencies acquired through volunteer activities (Cedena, 2015). However, in some of its aspects, the study and analysis of the educational benefits derived from these activities remain underdeveloped. There is now growing recognition of its importance as an educational element (Martínez Odría, 2003), and when managed properly, it can help ensure a high-quality school system geared toward excellence. Undoubtedly, in extracurricular projects, the formative processes experienced differ from those found in a traditional educational setting.
The problem arises when education is limited to training professionals without imparting values, leading to market-driven education. For this reason, volunteer activities can serve as stages and tools for a participatory process and ongoing education on human rights, activating young people. Through these activities, they would gain individual and social commitment, as well as responsibility for human development and social change (Carazzone, 2013).
Human rights education is founded on principles and values recognized by international agreements with normative and universal value, as stated in the Universal Declaration of Human Rights:
“Education shall be directed to the full development of the human personality and to the strengthening of respect for human rights and fundamental freedoms. It shall promote understanding, tolerance and friendship among all nations, racial or religious groups, and shall further the activities of the United Nations for the maintenance of peace.” (United Nations, 1948, art. 26.2)
Building on human rights, education improves the active and meaningful participation of young people, fostering individual and social responsibility, and collaboration with other stakeholders for societal improvement. Those who participate in cooperation projects expand their human and professional skills while working with partners and local staff for the human development of the action’s beneficiaries. This increases awareness of human rights and the responsibility to ensure that everyone enjoys them, the value of individual participation, and the social power of each project, fostering a culture of citizenship in today’s globalized world. This active and responsible community guarantees a fairer, more equitable, and healthier society. Therefore, volunteering — in this case, international volunteering — is a unique opportunity to educate global and responsible citizens who seek the common good and care about the future of society and humanity, paving the way towards a culture of justice and solidarity (Carazzone, 2013).
Volunteering in University Architecture Studies
University volunteering is an emerging topic, situated between learning and service. In 2007, the Strategy of Education for Spanish Cooperation document was published, which referenced the role of universities — and other higher education institutions — as places that generated and adapted to the specific knowledge of the needs of developing countries (Ministry of Foreign Affairs and Cooperation of Spain, 2007). Similarly, Law 45/2015, in its article 22, refers to the promotion of volunteering within universities, specifically in their own areas of action: training, research, and awareness (Government of Spain, 2015).
It is essential to emphasize that when referring to volunteering within universities, it includes both the action of university students and the entire institutional policy, encompassing its community and the university’s own areas (Gaete, 2023). However, this work focuses on students in the process of obtaining a degree, specifically an architecture degree, to assess the benefits for their training applicable to their subsequent entry into the labor market.
IIn 2010, the University Student Statute was published, which includes the right to “their incorporation into volunteering and social participation activities, development cooperation, and other forms of social responsibility organized by the universities” (Government of Spain, 2010, art. 7.1, sec. q). The values-based education that volunteering offers is especially interesting for young people, as it allows them to put acquired knowledge into practice. Through university volunteer activities, students could gain greater social and civic sensitivity towards the problems and needs of the population. This can strengthen university training processes through service learning and social entrepreneurship, which would benefit the local community (Gaete, 2023). In this regard, it has been shown that employers value the solidarity aspect, believing it is a way to develop skills that enhance employability (Cedena, 2015). However, the voluntarism of participants is insufficiently recognized in many universities and by the Spanish accreditation agency for academic promotion, ANECA (Goycoolea & Megías, 2017).
When correctly integrated with university training, volunteering can serve as an educational instrument that complements classroom learning with topics such as social learning, respect, tolerance, and empathy, increasing sensitivity to appreciate the human dimension accompanying each problem, leading to better and fairer solutions (Gaete, 2023).
One of the professions that must address community issues is architecture, both for current graduates and future architects. They play a fundamental role in ensuring the SDGs and defending people’s right to housing. Currently, issues related to exclusion, poverty, inequality, fragmentation, and environmental degradation put significant pressure on territories, which must ensure basic services, housing, infrastructure, employment, and security (Torres, 2020). Future architects in training will have the ability to shape these territories in the future, serving the communities that inhabit them.
If the complexity of the profession could be learned through volunteer activities during undergraduate studies, architecture students would bring their opportunities and knowledge, while the host community would offer hospitality and wisdom. This would improve fieldwork, complementing academic training with the assistance in training others. These communities teach other ways of practicing architecture, both spatially and technically. On many occasions, the knowledge and techniques developed throughout history do not have sufficient representation in architecture education. What is lost in this sense is the opportunity for knowledge and the deepening of how the discipline is conceptualized (Tomasi & Rivet, 2011).
Learning through volunteering offers the opportunity for professional practice that, in many cases, the university does not provide. It could be considered a form of teaching innovation, as it introduces the novelty of students learning and improving in a context of real needs (Martínez Martín, 2022). Thanks to experiences like these, committed professionals can be trained through the integration of teaching, research, and university outreach (Tomasi & Rivet, 2011).
Training in architecture schools — like other degrees — is often confined within university walls, without much opportunity to engage with alternative knowledge or other problems. Although this is not new, as the critical debate on architect training has generated extensive literature (Goycoolea et al., 2021). In many ways, students become passive subjects of their own formative process, dominated by theoretical, lecture-based classes that are disconnected from their surroundings (Gaete, 2023). This bias in education distances the university space from other social actors. Additionally, most projects and teaching syllabi are centered on urban areas, leaving a considerable portion of potential work areas for their future careers, such as rural areas, aside. Rural areas often have unique conditions that architects need to understand. For example, traditional building techniques like adobe construction are used in many countries as an ecological solution with good insulation and easy fabrication. Not only are construction techniques limited, but also the spatiality they encapsulate, which is necessary in academic training settings.
Thus, the university space becomes a place where dominant schemes are reproduced rather than a meeting point for various alternatives and opposing positions on a problem. Furthermore, in most cases — if not all — projects proposed throughout years of architecture education are neither executed nor completed but rather stored and archived indefinitely without any subsequent review by the student.
Although it is true that in many cities and certain universities volunteer activities are present, they are conducted separately from academic studies, without a direct link to academic training or credit recognition. An example of this is the “training support for international cooperation with field placements” offered by the University of Seville to its students. These experiences are carried out through development cooperation projects linked to various fields of knowledge. Architecture students must choose options from the fields of engineering and architecture, which in many cases only refer to a specific area of engineering. For example, in the current 2024 proposal, there are ten choices in the architecture and engineering fields, but only one of them matches the architect’s profile; the rest seek competencies in electronic, biochemical engineering, etc.
On the other hand, the well-known association Architecture Without Borders, present in some Spanish autonomous communities, develops both local and international projects. However, these are not linked to university studies; rather, they are independent. This would be more enriching if there were a connection between both types of institutions.
This situation means that most students, for various reasons, cannot carry out both activities simultaneously, and university education always takes precedence. Volunteer activities should be an intrinsic part of university life, not an isolated or circumstantial event (Gaete, 2023). Just as professional internships are recognized for credits, volunteering experiences should be promoted as part of the degree, facilitating opportunities for students who wish to get involved.
For this reason, actions in university volunteering — whether local, national, or international — are necessary to transform the learning environment, complementing theoretical training with the practical application of skills in service to the community, which in turn enhances civic and social awareness (Gaete, 2023).
In light of the above, the objectives of this work are to evaluate the potential benefits of voluntary activities in university architecture studies, assess the educational contributions they provide, and explain how students could benefit from them by gaining professional skills for their future entry into the workforce. In this sense, purely educational issues, the achievement of competencies, and the social contributions to the community perceived through experiential learning from volunteering will be analyzed.
Methodology
This study is a single explanatory case analysis based on an architecture student’s experience in two volunteer activities. After a literature review of the current context of volunteering in education, and a review of references related to volunteer activities linked to university architecture education, the body of the work concludes with the presentation of practical experiences. To highlight the educational opportunities that voluntary work can offer during university architecture studies, two projects are presented, from which the learning results and conclusions are drawn. The projects were carried out in Mabesseneh-Lunsar, Sierra Leone: the first was a socio-health center, and the second a women’s workshop, both proposed within the grounds of St. John of God Catholic Hospital.
Both projects were developed outside the context of university studies, carried out by the same person who was simultaneously pursuing undergraduate and master’s studies in Architecture. At no point were they integrated into the curriculum, as the NGO involved — África Viva — had no agreement with the university, and the university itself had no projects in Sierra Leone. There was a special interest in collaborating with África Viva due to prior knowledge of the organization, and previous volunteers from other disciplines had acknowledged it as a good place to collaborate.
The first project, the socio-health center, arose from the community’s demand and the NGO’s need for someone to handle architecture-related tasks. After completing this project, the proposal for the second project, a women’s workshop, was made. The entire experience lasted two and a half years, but the pandemic prevented on-site monitoring of the socio-health center construction, and the women’s workshop has not yet begun due to a lack of funding. For future studies, it would be necessary to include a visit to the country and the site to gather information related to direct contact with the final users.

Fig. 1. Timeline of both experiences.
Source: Authors (2024).
This work is limited to expressing the volunteer’s perception of the experience, as there was no connection to formal education, and no instructor was involved. In the future, it would be interesting to carry out an experience with a group of students and teachers, paying attention to the relationship between the teachings and the practical volunteer experience, to determine if the benefits and skills learned are truly reflected in their competencies.
Results
As previously mentioned, the two projects were carried out in Sierra Leone, a country in West Africa, while the architecture studies were being completed. Due to the disconnection between the volunteer work and the Spanish university, the project offers began parallel to the architecture studies, stemming from personal interest and the need for an architect by the África Viva association. The relationships were initiated through a mutual contact. The decision was made to conduct the experience within the context of international cooperation, and Sierra Leone was chosen as it was a country with prior knowledge and interest in its context. Additionally, it was a location where other NGOs, such as Architecture Without Borders, were not working.

Fig. 2. Diagram of the location of St. John of God Hospital in Lunsar, and its location within Sierra Leone.
Source: Authors (2024).
Sierra Leone is located on the western coast of Africa, covering an area of 71,740 square kilometers, with a population of 8,605,718 people (World Bank, 2022). Slightly smaller than Andalusia (Spain) in area but with a similar population size, it faces severe social, political, economic, and human consequences after more than a decade of war (Ministry of Foreign Affairs and Cooperation of Spain, 2024).
The projects took place in the city of Mabesseneh-Lunsar — hereafter referred to simply as Lunsar — the largest city in the Port Loko district, located in the country’s northwest center. One of Lunsar’s most important services is the St. John of God Hospital, which serves approximately 152,394 residents, including those in more disadvantaged rural areas.
The international volunteering experience in Sierra Leone began through contacts at the África Viva Foundation, which reached out to request an architecture project for a socio-health center in Lunsar.
África Viva focuses on improving healthcare, particularly maternal and child health, although it also works to combat malnutrition, HIV, malaria, tuberculosis, and train healthcare personnel in remote areas. In Sierra Leone, its local partner is the St. John of God Hospital.

Fig. 3. Aerial image of the architecture projects discussed in the work: the Alafia Center, already built, and the maternal workshop without the proposed intervention.
Source: Authors (2024).
The integration into the work team began with the experience at the Alafia socio-health center. The request arose from an explicit demand from the population, which was highlighted in a health study conducted in 2018 in the hospital’s area of influence. The objective of this analysis was to assess the availability, accessibility, and quality of primary care in the existing healthcare network. The report reflected the population’s main needs and priorities based on an analysis of the precariousness of the healthcare system in the intervention area, regarding the availability of healthcare infrastructure, human resources, equipment, and service capacity. It also identified numerous barriers to healthcare access (África Viva, 2021). As a result, it was concluded that a primary care and community health program was necessary, and a participatory model and full integration into the hospital were sought.
Thus, the construction and equipment of the Alafia center were deemed necessary to promote primary care for citizens. The center included spaces dedicated to sexual and reproductive health, as well as child and adolescent care, along with areas for the promotion of women’s support groups and their empowerment. It was also important to consider environments where healthcare workers and traditional midwives could receive continuous training. Healthcare facilities are usually designed in architecture schools, but they often address different population needs, making this an interesting functional innovation from a multicultural perspective (a competency within the Architecture degree as outlined in Order EDU/2075/2010 [Ministry of Education of Spain, 2010]) for design training.
After the initial contact with the foundation, there was a first communication with the hospital manager to understand the functional program of the building, meaning what spaces were needed for the socio-health center and how many square meters could be built, as the initial concept was quite vague. Additionally, it was important to determine the location of the building, considering factors such as sunlight, the positioning of access points, etc. In response, photographs of the land area and a Google Maps image with the building’s location point were sent. However, the land’s dimensions and topography were still unknown.
Subsequently, before starting the project, references regarding the traditional construction methods of the buildings within the hospital compound were requested, as it was understood that construction would be done in the same way. In this sense, adapting to new situations and recognizing the diversity of local knowledge and materials were important (Ministry of Education of Spain, 2010). From the information received, it was inferred that all buildings were elevated on a platform to protect them from the heavy rains that are frequent there for half of the year. As for materials, adobe bricks made and air-dried by the community were used. Unlike the situation in Spain — where everything is regulated and there is a large number of norms that affect the entire construction process — there was no institution or guideline specifying how to build. However, this did not mean that the construction should be done in an improvised or arbitrary manner. This contrast between construction methods in such a different international context (Ministry of Education of Spain, 2010) provided an enriching learning experience.
After an initial proposal, there were a series of back-and-forth discussions regarding the design of the spaces — always done remotely — as some rooms required dimension adjustments or certain elements needed to be adapted to local customs; for example, the placement of restrooms outside the building. It was important to consider local perspectives and allow for an exchange of ideas between the local agents and the project designer. This facilitated the development of interpersonal skills (Ministry of Education of Spain, 2010), which was also significant since, during the training stages, the students’ main interlocutor is always the teacher, not the final recipient of the proposal.
Thanks to university academic training, it was deemed necessary to include certain construction elements that would improve interior ventilation through a permanent cross breeze created by small openings above the doors and at the ridge of the roof. In other words, university specialization helped improve the quality of the planimetric layout and the construction solutions.

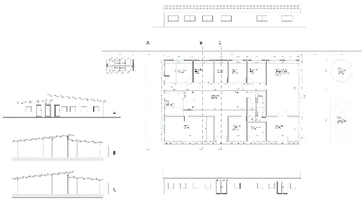
Fig. 4. Floor plan of the Alafia socio-health center.
Source: Authors (2024).
Construction began in February 2020. Unfortunately, it was not possible to monitor the progress as desired due to the COVID-19 pandemic. This also extended the project timeline, and the center was finally inaugurated on April 16, 2021. When the building was reviewed — always remotely — it was noted that not all improvement proposals had been implemented in the building’s construction.


Figs. 5 and 6. Images of the construction process — during and after completion — of the Alafia socio-health center.
Source: Images taken and provided by the hospital authorities.
After the successful reception of the socio-health center, the foundation contacted us again at the end of 2021 to carry out a project for a women’s workshop, called the “Mother Workshop,” within the same hospital. Due to the ethical commitment made (Ministry of Education of Spain, 2010), the project was gladly accepted.
This workshop is part of the “Program for the Promotion of Safe Motherhood, Seeking a Comprehensive Socio-Health Approach in the Intercultural Context of Lunsar,” initiated in 2016 to strengthen and restore maternal and child health services at St. John of God Hospital. The program includes basic interventions and awareness-raising actions for pregnant and breastfeeding women. Among these actions is the need to promote income-generating activities, in this case, sewing and tailoring courses, as well as soap making. The space allocated for the workshop was very limited and poorly equipped. Unlike the previous case, this project involved demolishing an existing workshop. The location was once again indicated through images.
Functionally, it was important to understand in this project that mothers, if they did not have direct visual contact with their children, would not pay attention to the classes. Moreover, for the children’s safety, they could not enter the classrooms where the workshops were held, as there were scissors, needles, or chemicals in the case of the soap-making workshop.
As for the construction proposal, it was once again adapted to the construction methods used in the rest of the hospital, to local traditions and knowledge, while incorporating improvements in construction and interior spatial distribution. Unfortunately, funding for this project has not yet been secured, so it has not been carried out. This is a common situation in formal education, where projects are usually fictitious and do not arise from real needs.

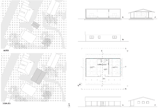
Fig. 7. Floor plan of the location and proposal for the Mother Workshop.
Source: Authors (2024).
Discusión
As Martínez Odría (2003) indicates, the study and analysis of the educational benefits linked to volunteer activities are areas of reflection still to be explored, but there is growing acceptance of these activities as an educational element. In this specific case, after presenting the results of both experiences, it is confirmed what Bernal (2001) stated: both the recipient community and the volunteer have benefited from these volunteer actions. According to the annual reports from África Viva (2021), the Alafia socio-health center has numerous beneficiaries in the health and social assistance program: 2,500 women, 480 adolescents, and 3,574 children under five years of age. Therefore, it can be said that the construction of the center has had a positive impact on its intended beneficiaries.
On the other hand, volunteering also provided direct experience with the project design process: through constant contact and review with the “client” or the project’s recipients; as part of civic participation (Martínez Odría, 2003), with the execution of the works, which involved delays and rising material costs; and with the building as the final product. It also allowed for the discovery of construction knowledge — learned and recognized by the natives as their own — and local materials, which are typically more sustainable and locally sourced, like adobe bricks in this case. In other words, this experience improved professional training through real work, outside of the university environment, which never covered this local knowledge or traditions.
Moreover, as an architecture student, this experience has been highly beneficial for potential future problem-solving, specifically in areas related to poverty and the provision of basic services to underserved areas. However, this was done independently from the offerings of the University of Seville, which typically only offers projects related to engineering and not, as Gaete (2023) recommends, intrinsically linked to university training.
Likewise, it is undeniable that volunteer activities have helped strengthen education in values such as solidarity, social responsibility, and belonging, aiding in the formation of the architect and as an active citizen of the future, which is valued in the labor market, as Cedena (2015) points out. Thanks to this extracurricular international volunteer project, it has been possible to experience formative processes different from those found in a traditional educational context. Alternative learning was received, which does not focus on transmitting values, even though the University Student Statute grants the right to it (Government of Spain, 2010).
Conclusions
The experience carried out in this case for the Architecture degree aligns with the requirements outlined in the Registry of Universities, Centers, and Degrees (Ministry of Education of Spain, 2010) for training architects: it improved learning outcomes and addressed possible gaps necessary for the full acquisition of competencies — basic, but primarily general, transversal, and specific. Specifically, as a basic competency, working with local health agents helped develop the ability to convey information, ideas, problems, and solutions to both specialized and non-specialized audiences. As for the volunteer process itself, general competencies were improved, such as teamwork, adaptability, ethical commitment, working in an international context, interpersonal skills, and the recognition of diversity and multiculturalism, among others. It is also worth noting that volunteer activities foster an entrepreneurial spirit — another transversal competency — as they undoubtedly involve stepping out of the academic comfort zone. Finally, knowledge of other ways of building and even designing had a positive impact on specific competencies, such as an adequate understanding of conventional construction systems and their pathology.
There is a growing sensitivity towards social participation, and specifically towards volunteer processes, among young people. This is particularly interesting because these are the generations that will build the future, and through these processes, they promote their education in values such as solidarity and social responsibility while improving their environment. A more thorough analysis and an expansion of the sample to other case studies will be necessary to discover advantages and potential drawbacks that were not detected in the examples studied. An innovative and integrative pedagogy should be based on the actions of all educational agents to address social, environmental, and economic issues by offering new solutions and alternatives. Therefore, the educational model should be understood and directed as a tool capable of guiding individuals toward more responsible ways of life and universities toward quality in the constant pursuit of excellence.
Volunteering in university education can represent a form of teaching innovation, as it introduces students to the context of real needs and broadens their perspectives to other contexts. Besides positively impacting the local community, it benefits the students by offering them the opportunity to understand real problems, gain professional skills, and acquire new competencies that employers later value.
If volunteer activities were integrated into university architecture studies, current community issues, such as the loss of the right to housing, could be addressed by learning through an active and practical methodology. This would help generate critical reflections and improve the quality of education. Thanks to these experiences, upon their return, students could reconnect with their home communities to verify that when intervention arises from an explicit demand on a real issue, the results are often successful. Currently, in architecture, universities remain confined within their walls, focusing on theoretical and applied teachings: they propose projects to students that, for the most part, do not address real cases and are never executed.
Finally, it is recommended that universities with architecture programs propose alternative training spaces — embedded within internships — where knowledge exchange between builders, students, and teachers is encouraged. This could be achieved through volunteer work that applies theory to real cases in a community in need. Additionally, it would be important to recognize the dedication to projects and cooperation programs by promoting participation and acknowledging research on volunteer activities.
In conclusion, this study has outlined the numerous benefits that volunteering, linked to university architecture education, offers. It allows the formation of more competent future professionals while improving the quality of life of the beneficiaries. For this to happen, a clear commitment from universities and greater collaboration from specialized associations would be necessary, so that volunteer activities become an active part of architectural education within the teaching process through practice.
References
África Viva (2021). Memoria 2021. África Viva. https:// tinyurl.com/yyebw2d9
Bernal, A. (2001). Voluntariado: 2001, Proyecto global de acción. Estudios Sobre Educación, 1, 91-97. https://doi. org/10.15581/004.1.25686
Carazzone, C. (2013). Don Bosco, el voluntariado inter- nacional y la educación para el desarrollo. Educación y Futuro, 28, 183-200. https://tinyurl.com/3a56zw76
Cedena, B. (2015). Vol+: Certificación de competencias a través del voluntariado. Revista Española del Tercer Sec- tor, 31, 149-155. https://tinyurl.com/yc4twnkp
Gaete, R. (2023). Responsabilidad social universitaria como ámbito estratégico para las instituciones de educación su- perior. Podium, 43, 19-40. https://tinyurl.com/2s3ku3m7
García, O., & Chavarría, C. (2020). Voluntariado 2030: Nue- vos paradigmas. Documento de contexto: Haciendo voluntariado juntos para facilitar el cambio y crear un mundo mejor. Emirates Foundation / International Association for Volunteer Effort. https://tinyurl.com/3ehsud6p
Gobierno de España (2010). Real Decreto 1791/2010, de 30 de diciembre, por el que se aprueba el Estatuto del Estudiante Universitario. Boletín Oficial del Estado, 318, 109353-109380. https://tinyurl.com/3ejxsvf6
Gobierno de España (2015). Ley 45/2015, de 14 de oc- tubre, de Voluntariado. Boletín Oficial del Estado, 247. https://tinyurl.com/59u53zsd
Gobierno de España (2018). Plan de acción para la imple- mentación de la Agenda 2030: Hacia una estrategia españo- la de desarrollo sostenible. Gobierno de España. https:// tinyurl.com/27r2ytr2
Goycoolea, R., Fuentealba, J., & Barrientos, M. (2021). Ja- vier Seguí de la Riva: Pedagogías radicales. HipoTesis Se- rie Numerada, 9, 37-47. https://tinyurl.com/32exffmm
Goycoolea, R., & Megías, M. (eds.) (2017). Objetivos del De- sarrollo Sostenible: Una mirada crítica desde la universidad y la cooperación al desarrollo. Universidad de Alcalá. ht- tps://tinyurl.com/mr3efawh
IAVE (2001). Declaración universal sobre el voluntariado. IAVE. https://tinyurl.com/4jdtv5jc
Martínez Martín, M. (2022). Consideraciones y argumen- tos a favor de la institucionalización del aprendiza- je-servicio en la educación superior y la universidad. RIDAS. Revista Iberoamericana de Aprendizaje-Servicio, 14, 85-105. https://tinyurl.com/yendvyuh
Martínez Odría, A. (2003). Las actuaciones volunta- rias como cauce de participación social: El inte- rés de su inclusión en el sistema educativo formal. Estudios sobre Educación, 5, 181-190. https://doi. org/10.15581/004.5.25622
Ministerio de Asuntos Exteriores y de Cooperación de España (2007). Estrategia de Educación de la Cooperación Española. Ministerio de Asuntos Exteriores y de Coo- peración. https://tinyurl.com/9jcshy2t
Ministerio de Asuntos Exteriores y de Cooperación de España (2024). Ficha País Sierra Leona. Ministerio de Asuntos Exteriores y de Cooperación. Accedido 15 de sep- tiembre. https://tinyurl.com/yc8f8cc5
Ministerio de Educación de España (2010). Orden EDU/2075/2010, de 29 de julio, por la que se estable- cen los requisitos para la verificación de los títulos uni- versitarios oficiales que habiliten para el ejercicio de la profesión de arquitecto. Boletín Oficial del Estado, 185, 66483-66487. https://tinyurl.com/su3w8jcv
Organización de las Naciones Unidas (1948). Declaración Universal de los Derechos Humanos. Resolución 217 A (III). https://tinyurl.com/4hvh2vvt
Rodas, M. (2021). La educación para el desarrollo soste- nible como motor de la Agenda 2030: El voluntariado como propuesta de actuación. En J. Maroto y A. Pinos (coords.), Por un desarrollo sostenible de la Vega de Gra- nada (España) (pp. 11-23). Universidad de Granada. https://tinyurl.com/mr2vns9d
Tomasi, J., & Rivet, C. (coords.) (2011). Puna y arquitectu- ra: Las formas locales de la construcción. Centro de Docu- mentación de Arquitectura Latinoamericana. https:// tinyurl.com/2upj8zer
Torres, C. (2020). Materialización del derecho a la ciudad 1. Bitácora Urbano-Territorial, 30(1), 7-14. https://tin- yurl.com/4kk2tu72
UNESCO (2017). Educación para los Objetivos de Desarrollo Sostenible: Objetivos de aprendizaje. UNESCO. https:// tinyurl.com/3kxxbpky
Voluntarios de Naciones Unidas (2020). Informe de sínte- sis mundial: Plan de acción para integrar el voluntariado en la Agenda 2030. Voluntarios de Naciones Unidas. https://tinyurl.com/2djrecbv
Voluntarios de Naciones Unidas (2022). Informe del estado del voluntariado en el mundo 2022: Crear sociedades igua- litarias e inclusivas. Voluntarios de Naciones Unidas. https://tinyurl.com/mrjm8aap
Conflict of Interest Statement
The authors declare that there is no conflict of interest.
Author Contribution Statement
Both authors contributed significantly to all stages of conceptualization and development of the research and writing of the manuscript.
Ethics Statement
The authors declare that the work complies with the applicable international ethical guidelines for the discipline, including informed consent from the participants in the research.
Maruri Arana & Pérez Cano. (2024). The Opportunity of Inserting Volunteering into University Education in Architecture: Experience of Two Projects in Lunsar, Sierra Leone. Revista Andina de Educación 8(1), 000801. Published under license CC BY-NC 4.0