
Revista Andina de Educación 8(1) (2024) 000801
Oportunidad de inserción del voluntariado en la educación universitaria en arquitectura: Experiencia de dos proyectos en Lunsar, Sierra Leona
The Opportunity of Inserting Volunteering into University Education in Architecture: Experience of Two Projects in Lunsar, Sierra Leone
Ainhoa Maruri Aranaa 
, María Teresa Pérez Canoa 

a Universidad de Sevilla. Departamento de Urbanismo y Ordenación del Territorio. Avenida Reina Mercedes 2, 3ª planta, 41012, Sevilla, España.
Recibido el 07 de junio de 2024. Aceptado el 13 de septiembre de 2024. Publicado el 04 de noviembre de 2024
© 2024 Maruri & Pérez. CC BY-NC 4.0
https://doi.org/10.32719/26312816.2024.8.1.1
Resumen
El presente trabajo pone el foco en el voluntariado ligado a la educación universitaria en arquitectura. Con él, se busca dejar constancia de los beneficios que aporta incluir trabajos voluntarios en el ámbito de la educación formal superior, concretamente en el ámbito de las enseñanzas universitarias en arquitectura, ya que ofrecen reflexiones y experiencias que podrían mejorar la calidad de la escuela, para formar profesionales más capacitados. Como ejemplo, se presentan dos experiencias de voluntariado internacional en Lunsar, Sierra Leona, que permitieron salir del contexto universitario nacional y poner en práctica los conocimientos teóricos, a la vez que se ayudaba a la comunidad receptora y se reconocía el potencial de sus saberes y técnicas locales. Se concluye que la inclusión del voluntariado por parte de las universidades en la formación en arquitectura puede suponer una forma de innovación docente, al introducir al estudiante en el contexto de las necesidades reales vinculadas a la futura profesión.
Palabras clave: educación en arquitectura, proyectos de voluntariado, experiencia en cooperación, Lunsar
Abstract
The central element of this work is volunteering linked to university education in Architecture. With it, this study seeks to record the benefits of including voluntary work in the field of higher formal education, specifically in the discipline of university teaching in Architecture, since they offer reflections and experiences that could improve the quality of the School, training more qualified professionals. As an example of this, two international volunteering experiences are presented in Lunsar, Sierra Leone, which have allowed to leave the national university context by putting theoretical knowledge into practice while helping the community and recognizing the potential of their knowledge and local techniques. It is concluded that the inclusion of volunteering by universities in Architecture training can represent a form of teaching innovation, introducing the student to the context of real needs, linked to the future profession.
Keywords: education in architecture, volunteer projects, cooperation experience, Lunsar
Introducción
El año 2001 fue declarado Año Internacional del Voluntario, tras llevarse a cabo, en Ámsterdam, la Declaración Universal del Voluntariado (IAVE, 2001). En este contexto se evidencia una creciente sensibilidad por la promoción de la participación ciudadana en la construcción social, que puede darse en diversos ámbitos y con colaboradores de una amplia franja de edad (Martínez Odría, 2003). Especialmente interesante es el ámbito referido a la participación de la juventud —por tratarse de las generaciones que construirán el futuro— en lo concerniente a las experiencias del voluntariado, cuyas aportaciones educativas aún están por investigarse en toda su amplitud.
La educación dirigida a las personas jóvenes debe transformarse y, a través de una pedagogía innovadora e integradora basada en la acción de todos los agentes educativos, abordar los problemas sociales, ambientales y económicos aportando soluciones y alternativas sostenibles. La Agenda 2030 y sus diecisiete Objetivos de Desarrollo Sostenible (ODS) se refieren a la educación como instrumento indispensable para la consecución de todos los objetivos mundiales (Gobierno de España, 2018). Siguiendo esta línea, el voluntariado desde la educación surge como propuesta de participación local dirigida hacia la sostenibilidad y la defensa del medio ambiente, a partir de un fuerte compromiso educativo para el alcance de la Agenda 2030 (Rodas, 2021).
Es importante convertir el modelo educativo en un instrumento que encauce hacia formas de vida más responsables y sostenibles, con consciencia ética y responsabilidad. Para ello sería interesante incluir a la participación ciudadana desde el voluntariado en la experiencia educativa. El voluntariado es una de las formas de actuación que más se comprometen con las personas, además de ser un medio para reflexionar sobre todas las áreas temáticas de los ODS (UNESCO, 2017). La universidad como institución, por su parte, no puede estar ajena al alcance de los ODS, pues tiene un papel importante en el proceso para alcanzarlos (Goycoolea & Megías, 2017).
En concreto, el voluntariado universitario es un tema emergente en las relaciones entre el aprendizaje y el servicio. El presente artículo trata específicamente el voluntariado en la educación universitaria, que, además de repercutir favorablemente en el tejido local de destino, impacta de manera positiva en el aprendizaje del alumnado. Trabajando de manera directa algunas competencias para el futuro profesional, y siguiendo una metodología activa durante la experiencia, se ayuda a generar reflexiones críticas y a promover mejoras en las formas de vida (Rodas, 2021).
No obstante, la reinante educación de mercado se limita a formar profesionales sin transmitir valores complementarios a los conocimientos de las aulas (Carazzone, 2013). En los estudios universitarios ligados a la arquitectura, el trabajo de voluntarios sería aún más importante, ya que se pondrían al servicio de las comunidades y de sus habitantes de forma inmediata. Serían conscientes de los problemas y las necesidades generados por la globalización o las megaciudades, donde se vulnera el derecho al hábitat. Este trabajo podría suponer un aprendizaje práctico adicional que actualmente la universidad no brinda; permitiría salir del claustro universitario, que en algunos casos aísla una parte importante del aprendizaje.
Voluntariado y educación
Tras la pandemia del año 2020, se enfatizó en todo el mundo la importancia de los voluntarios como agentes de cambio para generar esperanza y resiliencia y mejorar vidas, fortaleciendo las comunidades (García & Chavarría, 2020). La definición del concepto voluntariado es bastante amplia (Voluntarios de Naciones Unidas, 2022), de modo que se utilizará la de la Declaración Universal de la Asociación Internacional de Esfuerzos Voluntarios:
El voluntariado es un elemento clave para la construcción de la sociedad civil. Le da vida a las aspiraciones más nobles de la humanidad: la búsqueda de la paz, de la libertad, de las oportunidades, de la seguridad y de la justicia para todas las personas. (IAVE, 2001, párr. 1)
Como propone el Plan de acción para integrar el voluntariado en la Agenda 2030, el modelo de voluntariado se basa en cinco componentes; la estructura, el lugar, la periodicidad, la motivación y la categoría, características definidas desde una perspectiva amplia (Voluntarios de Naciones Unidas, 2020).
Las prácticas de voluntariado se dan por todo el mundo y sus modalidades pueden ser libres y diversas; a veces su principal objetivo no es la repercusión en terceros o en la ciudadanía en general. En general, los trabajos de voluntariado suponen numerosos beneficios, entre los que se encuentran la cohesión social, la generación de empleo, la ampliación de las redes y nexos sociales —lo que genera un importante capital social— y el intercambio de conocimientos y saberes. No es una acción altruista, pues, como se reconoce, todo el mundo sale favorecido. Estos beneficios se amplían en el caso de los jóvenes, quienes adquieren cualidades y hábitos positivos que habrán de mantener a lo largo de su vida (Bernal, 2001).
El año 2011 fue el Año Europeo del Voluntariado, punto de partida para comenzar a trabajar en el entendimiento y reconocimiento de las competencias adquiridas gracias a las actividades de voluntariado (Cedena, 2015). Sin embargo, en algunas de sus vertientes, el estudio y el análisis de los beneficios educativos derivados de estas actividades es un ámbito de reflexión aún por desarrollar. Ahora que existe un reconocimiento cada vez mayor de su importancia como elemento educativo (Martínez Odría, 2003), gestionado de manera adecuada, sería una forma de garantizar una escuela de calidad orientada a la excelencia. Sin duda, en los proyectos extracurriculares, los procesos formativos que se experimentan son diferentes a los que se dan en el contexto educativo clásico.
El problema aparece cuando la educación se limita a formar profesionales pero sin transmitir valores, lo que concluye en una educación de mercado. Por ello, las actividades de voluntariado pueden ser etapas y herramientas para un proceso participativo y de permanente educación sobre los derechos humanos, capaz de activar a los más jóvenes. Con ello, adquirirían un compromiso individual y social, así como responsabilidad por el desarrollo humano y los cambios sociales (Carazzone, 2013).
La educación de los derechos humanos está fundamentada en principios y valores reconocidos por convenios internacionales con un valor normativo y universal, como señala la Declaración Universal de los Derechos Humanos:
La educación tendrá por objeto el pleno desarrollo de la personaldad humana y el fortalecimiento del respeto a los derechos humanos y a las libertades fundamentales; favorecerá la comprensión, la tolerancia y la amistad entre todas las naciones y todos los grupos étnicos o religiosos, y promoverá el desarrollo de las actividades de las Naciones Unidas para el mantenimiento de la paz. (Organización de las Naciones Unidas, 1948, art. 26.2)
A partir de los derechos humanos, la educación mejora la participación activa y significativa de los jóvenes, formando en la responsabilidad individual y social y en la colaboración con otros actores implicados para las mejoras en la sociedad. Quienes participan en proyectos de cooperación amplían sus habilidades humanas y profesionales, mientras que trabajan con socios y personal local para el desarrollo humano de los destinatarios de la acción. Con ello, aumenta la consciencia de los derechos humanos y la responsabilidad de que todos los tengan, el valor de la participación individual y el poder social de cada proyecto, para fomentar una cultura de ciudadanía en el mundo globalizado actual. Esta comunidad activa y responsable garantiza una sociedad más justa, más equitativa y más saludable. Por lo tanto, el voluntariado —en este caso internacional— es una oportunidad única para educar a ciudadanos globales y responsables que busquen el bien común y se preocupen por el futuro de la sociedad y la humanidad, en un camino hacia una cultura de justicia y de solidaridad (Carazzone, 2013).
Voluntariado en los estudios universitarios de arquitectura
El voluntariado universitario es un tema emergente, a medias entre el aprendizaje y el servicio. En 2007 se publicó el documento Estrategia de Educación de la Cooperación Española, que hacía referencia al papel de la universidad —y otros centros superiores— como lugares que generaban y se adaptaban al conocimiento preciso de las necesidades de los países en desarrollo (Ministerio de Asuntos Exteriores y de Cooperación de España, 2007). En ese mismo sentido, la Ley 45/2015 hace referencia en su
art. 22 a la promoción del voluntariado desde las universidades, dentro de los ámbitos de actuación propios: la formación, la investigación y la sensibilización (Gobierno de España, 2015).
Es importante señalar que cuando se hace referencia al voluntariado en el interior de las universidades, se incluye tanto la acción de los jóvenes universitarios como toda la política institucional, englobando a su comunidad y a los ámbitos propios de la universidad (Gaete, 2023). No obstante, el presente trabajo se centra en los estudiantes en proceso de obtener un título, en concreto un título de arquitectura, para evaluar los beneficios en su formación aplicables a su posterior inserción en el mercado laboral.
En el año 2010 se publicó el Estatuto del Estudiante Universitario, que incluye como derecho de este “su incorporación en las actividades de voluntariado y participación social, cooperación al desarrollo, y otras de responsabilidad social que organicen las universidades” (Gobierno de España, 2010, art. 7.1, lit. q). La escuela de valores que ofrece el voluntariado es especialmente interesante para los jóvenes, pues pueden poner en práctica los conocimientos adquiridos. De las actividades de voluntariado en el contexto de la universidad, los estudiantes podrían aprender una mayor sensibilidad social y ciudadana hacia los problemas y las necesidades de los habitantes. Con ello se pueden fortalecer los procesos de formación universitaria a través del aprendizaje del servicio y de emprendimiento social, para que repercutan en la comunidad local (Gaete, 2023). En relación con ello, se ha demostrado que los empleadores tienen en cuenta el aspecto solidario, pues creen que es una forma de desarrollo de competencias que mejoran su empleabilidad (Cedena, 2015). No obstante, el voluntarismo por parte de los participantes no es reconocido de manera suficiente en un buen número de universidades, ni en la agencia de acreditación española para la promoción académica, ANECA (Goycoolea & Megías, 2017).
Es importante destacar que el voluntariado, si se articula correctamente con la formación universitaria, puede ser un instrumento educativo que complemente la formación de las aulas con temas como el aprendizaje social, el respeto, la tolerancia y la empatía, de modo que aumente la sensibilidad para valorar la dimensión humana que acompaña a cada problema, y se llegue a soluciones mejores y más justas (Gaete, 2023).
Una de las profesiones que tienen que dar respuesta a los problemas de las comunidades es la de arquitecto: tanto el ya egresado como el arquitecto del futuro. Estos juegan un papel fundamental para asegurar los ODS y defender el derecho al hábitat de las personas. En la actualidad, los problemas asociados a la exclusión, la pobreza, las desigualdades, la fragmentación y la degradación del medio ambiente suponen una fuerte presión para los territorios, que deben garantizar la dotación de servicios básicos, vivienda, infraestructura, empleo y seguridad (Torres, 2020). Los arquitectos en formación tendrán la capacidad de ordenar ese territorio en el futuro, poniéndose al servicio de las comunidades que lo habitan.
Si se pudiera aprender la complejidad de la profesión a través de actividades de voluntariado mientras se realizan los estudios de grado, los arquitectos en formación aportarían sus oportunidades y conocimientos, mientras que la comunidad receptora ofrecería hospitalidad y sabiduría. Con ello se podría mejorar el trabajo de campo, complementando la formación académica con la ayuda en la formación de otras personas. Estas enseñan otras formas de hacer arquitectura, desde lo espacial y desde lo técnico. En muchas ocasiones, los saberes y las técnicas que han desarrollado a lo largo de la historia no tienen suficiente cabida en las enseñanzas de arquitectura. Lo que se pierde, en ese sentido, es la posibilidad del conocimiento y de la complejización del modo en que se piensa la disciplina (Tomasi & Rivet, 2011).
El voluntariado que ayuda a hacer arquitectura mientras se aprende ofrece la oportunidad de una práctica profesional que la universidad, en muchos casos, no brinda. Se podría considerar una forma de innovación docente, ya que se introduce como novedad que el estudiante aprenda e intente mejorar en un contexto de necesidades reales (Martínez Martín, 2022). Gracias a experiencias como esa, se pueden formar profesionales comprometidos, a partir de la integración de docencia, investigación y extensión universitaria (Tomasi & Rivet, 2011).
La formación en las escuelas de arquitectura —como en otros grados— se cierra en los claustros universitarios, sin mucha posibilidad de abordar otras formas de conocimiento o atender a otras problemáticas, aunque no es algo nuevo, pues el debate crítico sobre la formación del arquitecto ha generado una amplia literatura (Goycoolea et al., 2021). En cierto modo, los estudiantes son sujetos pasivos de su propio proceso formativo, en el que predominan las clases expositivas, teóricas y absolutamente desconectadas del entorno (Gaete, 2023). Esto supone un sesgo en la educación, que aleja el espacio universitario de los otros actores sociales. Además, la mayoría de los proyectos y de los temarios de docencia están centrados en las ciudades, con lo que dejan de lado una porción considerable de las posibles áreas de trabajo en su futura carrera profesional, como las áreas rurales, donde se dan algunas condiciones singulares que deben conocer. Ejemplo de ello son las técnicas y los saberes tradicionales de construcción: por ejemplo, la construcción en adobe, que se utiliza en numerosos países por ser una solución ecológica, de buen aislamiento y de fácil fabricación. No solo se limitan las técnicas constructivas, sino que se puede hablar también de la espacialidad que estas encierran, necesarias en los entornos de formación académica.
Así, el espacio universitario se convierte en un lugar de reproducción de los esquemas dominantes, en vez de ser un punto de encuentro de diferentes alternativas y posiciones contrapuestas frente a un problema. Además, en la mayoría de ocasiones —por no decir en todas—, los proyectos que se proponen a lo largo de años de enseñanza en arquitectura no se llevan a cabo ni se ejecutan, sino que quedan guardados y archivados de manera indefinida, sin ninguna revisión posterior por parte del alumno.
Aunque es cierto que en muchas ciudades y en determinadas universidades están presentes las actividades de voluntariado, se hacen de una manera aislada a los estudios, sin una vinculación directa a la formación académica, ni con reconocimiento de créditos. Ejemplo de ello son las «ayudas a la formación en cooperación internacional con estancias en terreno» que la Universidad de Sevilla oferta a su estudiantado. Estas experiencias se llevan a cabo mediante proyectos de cooperación al desarrollo que se vinculan a las distintas áreas de conocimiento. Los estudiantes de arquitectura deben optar por ofertas de las ramas de ingeniería y arquitectura, que en muchas ocasiones se refieren únicamente a un ámbito específico de la ingeniería. Por ejemplo, en la propuesta presente, de 2024, hay diez elecciones en las ramas de arquitectura e ingeniería, pero solo una de ellas responde al perfil de arquitecto; el resto busca competencias de ingeniería electrónica, bioquímica, etc.
Por otro lado, la conocida Asociación de Arquitectura Sin Fronteras, con presencia en parte de las comunidades autónomas españolas, desarrolla proyectos tanto locales como internacionales, pero que no se vinculan a los estudios universitarios, sino que son independientes, cuando sería mucho más enriquecedora la interconexión entre ambos tipos de instituciones.
Ello supone que la mayoría de estudiantes, por diferentes motivos, no pueda realizar en paralelo ambas actividades, y siempre se da mayor importancia a la educación universitaria. Se entiende que las actividades del voluntariado deberían ser intrínsecas al quehacer universitario y no un hecho aislado o circunstancial (Gaete, 2023). Al igual que existen prácticas profesionales gracias a las cuales hay una compensación de los créditos, la experiencia de voluntariado debería fomentarse como parte de la carrera, para facilitar la oportunidad al alumnado que desea involucrarse.
Por ello, se creen necesarias las acciones del voluntariado universitario —ya sea local, nacional o internacional—, que transforman el espacio de aprendizaje, complementando la formación teórica con la puesta en práctica de habilidades al servicio de la comunidad, que a su vez aumenta la consciencia ciudadana y social (Gaete, 2023).
Con todo lo anterior, los objetivos de este trabajo son evaluar los beneficios que pueden suponer las actividades voluntarias en los estudios universitarios de arquitectura, valorar las aportaciones educativas que estas brindan y exponer cómo el alumnado se podría beneficiar de ellas capacitándose profesionalmente para su posterior salida al mundo laboral. En ese sentido, se analizarán cuestiones puramente educativas, el logro de competencias y los aspectos sociales de aporte a la comunidad que se han percibido a partir del aprendizaje experiencial desde
el voluntariado.
Metodología
El presente estudio es el análisis de un caso único de tipo explicativo, basado en la experiencia de una estudiante de arquitectura en dos actividades de voluntariado. Tras una revisión literaria del contexto actual del voluntariado ligado a la educación, y tras un repaso de las referencias ligadas a las actividades voluntarias vinculadas a la enseñanza universitaria de la arquitectura, el cuerpo del trabajo finaliza con la exposición de las experiencias prácticas. Para visibilizar de una manera más clara las oportunidades educativas explícitas que pueden suponer los trabajos voluntarios al cursar los estudios universitarios de arquitectura, se presentan dos proyectos de los que se extraen los resultados del aprendizaje y las conclusiones. Los proyectos se llevaron a cabo en la ciudad de Mabessenenh-Lunsar, en Sierra Leona: el primero fue un centro sociosanitario y el segundo, un taller para mujeres, ambos propuestos dentro del recinto del hospital católico San Juan de Dios.
Los dos proyectos se desarrollaron en un contexto fuera de los estudios universitarios, llevados a cabo por una misma persona que al mismo tiempo realizaba sus estudios de grado en Arquitectura y de máster. En ningún momento se integraron en la enseñanza, puesto que la ONG con que se colaboró —África Viva— no tenía ningún acuerdo con la universidad, y porque esta última no tenía ningún proyecto en Sierra Leona. Se tenía un interés especial en colaborar con África Viva porque se conocía previamente la organización y voluntarios anteriores de otras disciplinas habían reconocido que era un buen lugar para colaborar.
El primer proyecto, el centro sociosanitario, surgió de la demanda de la población y de la necesidad de la propia ONG de contar con una persona para realizar las tareas relacionadas con la arquitectura. Tras la ejecución de este proyecto, se recibió la propuesta de hacer el segundo, el del taller para mujeres. En total, la experiencia duró dos años y medio, pero la pandemia impidió realizar el seguimiento in situ de las obras del centro sociosanitario, y el taller para mujeres no se ha comenzado a construir por falta de presupuesto. Para estudios futuros, sería necesario incluir la visita al país y a la obra para recabar también información relativa al contacto directo con los usuarios finales.

Fig. 1. Esquema del cronograma de ambas experiencias.
Fuente: Autoras (2024).
Este trabajo se limita a expresar la percepción de la experiencia de la persona voluntaria, ya que, como no había relación con la formación reglada, no había ningún docente vinculado. En un futuro, sería interesante realizar una experiencia con un grupo de alumnos y docentes, prestando atención a la relación entre las enseñanzas y la experiencia práctica voluntaria, para saber si los beneficios y las capacidades aprendidas se plasman realmente en sus competencias.
Resultados
Como ya se adelantó, los dos proyectos se llevaron a cabo en Sierra Leona, país de África occidental, mientras que se realizaban los estudios universitarios de arquitectura. Dada la desvinculación de los trabajos voluntarios de la universidad española, las ofertas de los proyectos comenzaron en paralelo a los estudios de arquitectura, a partir de un interés personal y de una necesidad de la asociación África Viva de contar con una persona con el perfil de arquitecto. Se iniciaron las relaciones a través de un contacto en común. Se optó por realizar la experiencia en el contexto de la cooperación internacional y se eligió Sierra Leona porque era un país del que se tenía conocimiento previo e interés por su contexto. Además, era un lugar donde otras ONG como Arquitectura Sin Fronteras no trabajaban.
Sierra Leona es un país situado en las costas occidentales de África, con una superficie de 71 740 km2 en la que habitan 8 605 718 personas (según los datos del Banco Mundial para 2022), algo menor en superficie que Andalucía (España), pero con una población similar. Tras los más de diez años de guerra, las consecuencias sociales, políticas, económicas y humanas son muy graves (Ministerio de Asuntos Exteriores y de Cooperación de España, 2024).
Los proyectos se enmarcaron en la ciudad de Mabessenenh-Lunsar —en adelante se hará referencia únicamente a su nombre abreviado, que es Lunsar— , la más grande del distrito de Port Loko, situado en el centro-oeste del país. Uno de los servicios más importantes que ofrece Lunsar es el Hospital San Juan de Dios, que se cree que da servicio a aproximadamente 152 394 habitantes, entre los que se encuentran quienes habitan en zonas rurales más desfavorecidas.

Fig. 2. Esquema de la ubicación del Hospital San Juan de Dios en Lunsar, y este a su vez en Sierra Leona.
Fuente: Autoras (2024).
La experiencia del voluntariado internacional de los proyectos en Sierra Leona inició gracias a responsables de la Fundación África Viva, que se pusieron en contacto con la solicitud de realizar un proyecto de arquitectura para un centro sociosanitario en Lunsar.
África Viva se centra en la mejora de la atención sanitaria, especialmente en el ámbito maternoinfantil, aunque también trabajan para combatir la malnutrición, el VIH, la malaria, la tuberculosis y la formación del personal sanitario en áreas de difícil acceso. En Sierra Leona, su socio local es el Hospital San Juan de Dios.

Fig. 3. Imagen aérea de los proyectos de arquitectura que se exponen el trabajo: el centro Alafia, ya edificado, y el taller materno sin la intervención propuesta.
Fuente: Autoras (2024).
La incorporación al equipo de trabajo inició con la experiencia del centro sociosanitario Alafia. La petición surgió de una demanda explícita de la población, que se puso de relieve en un estudio de salud realizado en 2018 en el área de influencia del hospital. El objetivo de dicho análisis era conocer la disponibilidad, accesibilidad y calidad de la atención primaria en la red sanitaria existente. El informe reflejó las principales necesidades y prioridades de la población, a partir del análisis de la precariedad del sistema sanitario en el área de intervención, en relación con la disponibilidad de infraestructuras sanitarias, recursos humanos, equipamiento y capacidad de servicio; también registró numerosas barreras de acceso a la salud (África Viva, 2021). Con todo ello, se llegó a la conclusión de que era necesario un programa de atención primaria y salud comunitaria, y se buscó un modelo participativo y una integración completa para el hospital.
Así, se vio como necesarios la construcción y el equipamiento del centro Alafia, para promover la atención primaria a los ciudadanos. En él se incluyeron espacios destinados a la salud sexual y reproductiva y a la atención infantil y adolescente, además de lugares para la promoción de grupos de apoyo a las mujeres y su empoderamiento. Era importante, también, pensar en ambientes para que los trabajadores de la salud y las matronas tradicionales recibieran formación continua. Los equipamientos sanitarios normalmente se proyectan en las escuelas de arquitectura, pero responden a necesidades de población diferentes, por lo que supuso una novedad funcional interesante desde el punto de vista multicultural (competencia del grado en Arquitectura recogida en la Orden EDU/2075/2010 [Ministerio de Educación de España, 2010]) para la formación proyectual.
Tras el contacto inicial con la fundación, hubo una primera comunicación con el responsable del hospital para conocer el programa funcional del edificio, es decir, qué espacios necesitaban para el centro sociosanitario y cuántos metros cuadrados construidos se podrían ejecutar, ya que el concepto inicial era bastante ambiguo. Además, era importante saber cuál iba a ser el emplazamiento del edificio, para tener en cuenta el soleamiento, la colocación de los accesos, etc. En respuesta, se enviaron fotografías del área del terreno y una imagen de Google Maps con el punto de ubicación del edificio. Aun así, no se conocían las dimensiones ni la topografía del terreno.
Posteriormente, antes de realizar el proyecto se solicitaron referencias sobre el modo tradicional de construcción de los edificios que pertenecían al recinto hospitalario, pues se entendía se realizaría de la misma manera; en este sentido, la adaptación a nuevas situaciones y el reconocimiento de la diversidad de saberes y materiales locales eran importantes (Ministerio de Educación de España, 2010). De la información recibida se dedujo que todos los edificios estaban elevados sobre un zócalo para que no los afectaran las fuertes lluvias, que son frecuentes allí durante la mitad del año. En cuanto a los materiales, se empleaban ladrillos de adobe que la misma comunidad fabricaba y secaba al aire. En realidad, y a diferencia del caso español —donde todo está regulado y existe un gran número de normativas que afectan a todo el proceso edilicio—, no había ninguna institución ni directriz que especificara cómo se había de construir, pero no por ello debía hacérselo de una manera improvisada o arbitraria. Este contraste entre formas de edificar en un contexto internacional tan diferente (Ministerio de Educación de España, 2010) supuso un aprendizaje enriquecedor.
Tras una primera propuesta, hubo una serie de idas y venidas en cuanto al diseño de los espacios —siempre de manera telemática—, ya que algunas estancias necesitaban un ajuste de dimensiones o había que adaptar ciertos elementos a sus costumbres; por ejemplo, el emplazamiento de los aseos fuera del edificio. Era importante tener muy en cuenta las miradas locales y permitir el intercambio de visiones entre los agentes locales y quien diseñaba el proyecto. Ello posibilitó el desarrollo de las habilidades interpersonales (Ministerio de Educación de España, 2010), cuestión también muy significativa, pues en las etapas formativas el interlocutor del estudiantado es siempre el docente, y no el destinatario final de la propuesta.
Gracias a la formación académica universitaria, se creyó necesario incluir algunos elementos constructivos que mejorarían la ventilación del interior del centro, a través de una corriente cruzada permanente creada por las pequeñas aperturas sobre las puertas y en el encuentro de las dos aguas del tejado. Es decir, la especialización universitaria ayudó a mejorar la calidad de la distribución planimétrica y de las soluciones constructivas.

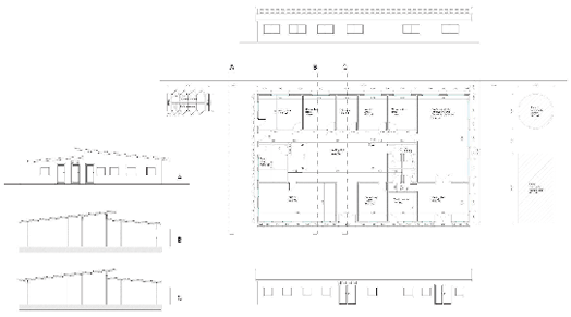
Fig. 4. Planimetría del centro sociosanitario Alafia.
Fuente: Autoras (2024).
Las obras iniciaron en febrero del año 2020. Desafortunadamente, no se pudo hacer un proceso de seguimiento del progreso, como se hubiese deseado, debido a la pandemia del COVID-19. Esto también alargó el tiempo de la obra, y el centro finalmente se inauguró el 16 de abril de 2021. Cuando se revisó la obra —en todo momento de manera telemática—, se observó que no todas las propuestas de mejora en la construcción del edificio se llevaron a cabo.


Figs. 5 y 6. Imágenes del proceso constructivo —durante la construcción y al finalizar— del centro sociosanitario Alafia.
Fuente: Imágenes realizadas y cedidas por los responsables del hospital.
Tras la buena acogida del centro sociosanitario, a finales de 2021, la fundación se puso de nuevo en contacto para realizar en el mismo hospital el proyecto de un taller para mujeres denominado Mother Workshop. Por el compromiso ético adquirido (Ministerio de Educación de España, 2010) se aceptó con gusto.
Este taller se incluye dentro del “Programa de la promoción de la maternidad segura buscando un abordaje integral sociosanitario en el contexto intercultural de Lunsar”, iniciado en 2016 para reforzar y restablecer los servicios de salud maternoinfantil del Hospital San Juan de Dios, con acciones básicas de intervención y sensibilización de mujeres embarazadas y lactantes. Entre ellas se encuentra la necesidad de potenciar actividades generadoras de ingresos; en este caso, cursos de corte y confección y de fabricación de jabón. El espacio destinado para el estudio era muy reducido y poco preparado. A diferencia del caso anteriormente expuesto, este proyecto partía de un taller preexistente que se iba a demoler. La ubicación se indicó nuevamente a través de imágenes.
Funcionalmente, en este proyecto era importante entender que las madres, si no tenían un contacto visual directo con los hijos, no prestaban atención a las clases. Además, por la seguridad de los niños, estos no podían acceder a las aulas donde se impartían los talleres, ya que había tijeras, agujas o productos químicos, en el caso del taller de jabón.
En cuanto a la propuesta constructiva, nuevamente se adaptó a la manera de construir del resto del hospital, a las tradiciones y los saberes locales, pero aportando mejoras constructivas y de distribución espacial interior. Desafortunadamente, no se ha encontrado todavía financiación para este proyecto, por lo que no se ha podido ejecutar, situación habitual en la formación reglada, pues los proyectos que se abordan son por lo general ficticios y no emanan de necesidades reales.

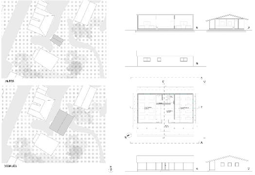
Fig. 7. Planimetría de la ubicación y de la propuesta del Mother Workshop.
Fuente: Autoras (2024).
Discusión
Como indica Martínez Odría (2003), el estudio y el análisis de los beneficios educativos ligados a las actividades voluntarias son ámbitos de reflexión aún por explorar, pero sí existe una mayor aceptación como elemento educativo. En este caso concreto, tras la exposición de los resultados de ambas experiencias, se comprueba lo dicho por Bernal (2001): tanto la comunidad receptora como la persona voluntaria han salido beneficiadas de estas acciones de voluntariado. Según los informes anuales de África Viva (2021), el centro sociosanitario Alafia tiene numerosos beneficiarios en el programa de salud y asistencia social: 2500 mujeres, 480 adolescentes y 3574 niños menores de cinco años. Por lo tanto, se puede señalar que la construcción del centro ha tenido un impacto positivo en los terceros a los que estaba destinado.
Por otro lado, el voluntariado también ha ayudado a tener una experiencia directa con el proceso de diseño proyectual: mediante el contacto y la revisión constante con el “cliente” o los destinatarios del proyecto; como parte de la participación ciudadana (Martínez Odría, 2003), con la ejecución de las obras, con lo que supuso la demora en la obra o con la subida de los costes de los materiales; y con el edificio como producto final. También permitió descubrir saberes de construcción —que los nativos han aprendido y reconocen como propios— y materiales locales, que normalmente son más sostenibles y de proximidad, como en este caso los ladrillos de adobe. Es decir, la experiencia ha mejorado la capacitación profesional a través de un trabajo real, saliendo del claustro universitario, que en ningún momento formaba en esos conocimientos ni tradiciones locales.
Además de lo anterior, como estudiante en formación en arquitectura, ha sido muy beneficiosa esta experiencia para la posible resolución de problemas en el futuro, en este caso concreto ligados a la pobreza y a la dotación de servicios básicos a lugares que no los tienen. No obstante, se ha debido hacer de forma aislada de la oferta de la Universidad de Sevilla, que en la mayoría de ocasiones ofrece únicamente proyectos ligados a la ingeniería, y no como recomienda Gaete (2023), es decir, de manera intrínseca a la formación universitaria.
Asimismo, es innegable que las actividades del voluntariado han permitido fortalecer la educación en valores como la solidaridad, la responsabilidad social o la pertenencia, ayudando a la formación como arquitecto y como persona activa del futuro dentro de la ciudadanía, algo que se valora en el mercado laboral, como indica Cedena (2015).
Gracias a este proyecto extracurricular de voluntariado internacional se han podido experimentar procesos formativos diferentes a los que se dan en el contexto educativo tradicional. Se ha recibido una enseñanza alternativa a la tradicional, que no atiende a la transmisión de valores, aun cuando según el Estatuto del Estudiante Universitario se tiene derecho a ello (Gobierno de España, 2010).
Conclusiones
La experiencia llevada a cabo, en este caso para el grado en Arquitectura, se alinea con las exigencias recogidas en el Registro de Universidades, Centros y Títulos (Ministerio de Educación de España, 2010) para formar a arquitectos: mejoró los resultados de aprendizaje y reforzó posibles lagunas necesarias para la plena adquisición de competencias —básicas, pero fundamentalmente generales, transversales y específicas—. En concreto, como competencia básica, trabajar con los agentes locales vinculados a la sanidad permitió desarrollar la capacidad para transmitir información, ideas, problemas y soluciones a un público tanto especializado como no especializado. Por lo que supone el propio proceso de voluntariado, se mejoraron competencias generales como el trabajo en equipo, la adaptación a nuevas situaciones, el compromiso ético, el trabajo en un contexto internacional, habilidades en las relaciones interpersonales y el reconocimiento de la diversidad y la multiculturalidad, entre otras. Cabe señalar, asimismo, que las actividades de voluntariado permiten fomentar el espíritu emprendedor —otra competencia transversal—, pues sin dudas supone salir de la zona de confort académico. Finalmente, el conocimiento de otras formas de construir e incluso de proyectar incidió positivamente en competencias específicas como el conocimiento adecuado de los sistemas constructivos convencionales y su patología.
Existe una sensibilidad creciente hacia la participación social, y en concreto hacia los procesos de voluntariado, entre los jóvenes. Es muy interesante, porque son las generaciones que construirán el futuro, y con ella favorecen su formación en valores como la solidaridad y la responsabilidad social, al tiempo que mejoran su entorno. Será necesario un mayor análisis y una ampliación de la muestra a otros casos de estudio para descubrir ventajas y posibles inconvenientes no detectados en los ejemplos estudiados. Una pedagogía innovadora e integradora debería sustentarse en la acción de todos los agentes educativos, para abordar problemas sociales, ambientales y económicos aportando nuevas soluciones y alternativas. Por ello, habría que entender y dirigir el modelo educativo hacia un instrumento capaz de encauzar al individuo hacia formas de vida más responsables y a la propia universidad hacia la calidad en la búsqueda constante de la excelencia.
El voluntariado en la educación universitaria puede suponer una forma de innovación docente, al introducir al estudiante en el contexto de las necesidades reales y ampliar su mirada a otros contextos. Además de repercutir positivamente en el tejido local, es positivo para el alumnado, pues le ofrece la oportunidad de conocer los problemas reales capacitándose profesionalmente y obteniendo nuevas competencias que posteriormente los empleadores valoran.
Si se unieran las actividades de voluntariado a los estudios universitarios en arquitectura, se podría dar respuesta a los problemas actuales de las comunidades más desfavorecidas, generados por cuestiones como la pérdida del derecho al hábitat, aprendiendo a través de una metodología activa y práctica, ayudando a generar reflexiones críticas y aumentando la calidad de la enseñanza. Gracias a estas experiencias, a su regreso los estudiantes se podrían vincular con sus comunidades de origen, para comprobar que cuando la intervención surge de una demanda explícita sobre una problemática real, los resultados suelen ser exitosos. En arquitectura, actualmente, las universidades se encierran en sus claustros y en enseñanzas teóricas y aplicadas: proponer al alumnado realizar proyectos que en su mayoría no se ajustan a casos reales ni tienen una ejecución.
Finalmente, se recomienda a las universidades con carreras de arquitectura que propongan espacios de formación alternativos —insertos dentro de las prácticas de empresa— donde se favorezca el intercambio de saberes entre constructores, estudiantes y docentes, a través también de trabajos de voluntariado que pongan en práctica la teoría aplicándola a casos reales, a una comunidad que lo necesite. Sería importante además el reconocimiento de la dedicación en los proyectos y programas de cooperación a partir de la promoción de la participación en y del reconocimiento de las investigaciones sobre actividades de voluntariado.
En conclusión, se han expuesto los numerosos beneficios que ofrece el voluntariado ligado a las enseñanzas universitarias de arquitectura, que permitiría formar a profesionales de futuro más competentes, a la vez que mejoraría la calidad de vida de los destinatarios. Para ello, reiteramos, sería necesario un claro apoyo de las universidades y una mayor colaboración de las asociaciones especializadas, de manera que las actividades de voluntariado sean una parte activa de las enseñanzas en arquitectura, en el proceso formativo de la docencia desde la práctica.
Referencias
África Viva (2021). Memoria 2021. África Viva. https://tinyurl.com/yyebw2d9
Bernal, A. (2001). Voluntariado: 2001, Proyecto global de acción. Estudios Sobre Educación, 1, 91-97. https://doi.org/10.15581/004.1.25686
Carazzone, C. (2013). Don Bosco, el voluntariado internacional y la educación para el desarrollo. Educación y Futuro, 28, 183-200. https://tinyurl.com/3a56zw76
Cedena, B. (2015). Vol+: Certificación de competencias a través del voluntariado. Revista Española del Tercer Sector, 31, 149-155. https://tinyurl.com/yc4twnkp
Gaete, R. (2023). Responsabilidad social universitaria como ámbito estratégico para las instituciones de educación superior. Podium, 43, 19-40. https://tinyurl.com/2s3ku3m7
García, O., & Chavarría, C. (2020). Voluntariado 2030: Nuevos paradigmas. Documento de contexto: Haciendo voluntariado juntos para facilitar el cambio y crear un mundo mejor. Emirates Foundation / International Association for Volunteer Effort. https://tinyurl.com/3ehsud6p
Gobierno de España (2010). Real Decreto 1791/2010, de 30 de diciembre, por el que se aprueba el Estatuto del Estudiante Universitario. Boletín Oficial del Estado, 318, 109353-109380. https://tinyurl.com/3ejxsvf6
Gobierno de España (2015). Ley 45/2015, de 14 de octubre, de Voluntariado. Boletín Oficial del Estado, 247. https://tinyurl.com/59u53zsd
Gobierno de España (2018). Plan de acción para la implementación de la Agenda 2030: Hacia una estrategia española de desarrollo sostenible. Gobierno de España. https://tinyurl.com/27r2ytr2
Goycoolea, R., Fuentealba, J., & Barrientos, M. (2021). Javier Seguí de la Riva: Pedagogías radicales. HipoTesis Serie Numerada, 9, 37-47. https://tinyurl.com/32exffmm
Goycoolea, R., & Megías, M. (eds.) (2017). Objetivos del Desarrollo Sostenible: Una mirada crítica desde la universidad y la cooperación al desarrollo. Universidad de Alcalá. https://tinyurl.com/mr3efawh
IAVE (2001). Declaración universal sobre el voluntariado. IAVE. https://tinyurl.com/4jdtv5jc
Martínez Martín, M. (2022). Consideraciones y argumentos a favor de la institucionalización del aprendizaje-servicio en la educación superior y la universidad. RIDAS. Revista Iberoamericana de Aprendizaje-Servicio, 14, 85-105. https://tinyurl.com/yendvyuh
Martínez Odría, A. (2003). Las actuaciones voluntarias como cauce de participación social: El interés de su inclusión en el sistema educativo formal. Estudios sobre Educación, 5, 181-190. https://doi.org/10.15581/004.5.25622
Ministerio de Asuntos Exteriores y de Cooperación de España (2007). Estrategia de Educación de la Cooperación Española. Ministerio de Asuntos Exteriores y de Cooperación. https://tinyurl.com/9jcshy2t
Ministerio de Asuntos Exteriores y de Cooperación de España (2024). Ficha País Sierra Leona. Ministerio de Asuntos Exteriores y de Cooperación. Accedido 15 de septiembre. https://tinyurl.com/yc8f8cc5
Ministerio de Educación de España (2010). Orden EDU/2075/2010, de 29 de julio, por la que se establecen los requisitos para la verificación de los títulos universitarios oficiales que habiliten para el ejercicio de la profesión de arquitecto. Boletín Oficial del Estado, 185, 66483-66487. https://tinyurl.com/su3w8jcv
Organización de las Naciones Unidas (1948). Declaración Universal de los Derechos Humanos. Resolución 217 A (III). https://tinyurl.com/4hvh2vvt
Rodas, M. (2021). La educación para el desarrollo sostenible como motor de la Agenda 2030: El voluntariado como propuesta de actuación. En J. Maroto y A. Pinos (coords.), Por un desarrollo sostenible de la Vega de Granada (España) (pp. 11-23). Universidad de Granada. https://tinyurl.com/mr2vns9d
Tomasi, J., & Rivet, C. (coords.) (2011). Puna y arquitectura: Las formas locales de la construcción. Centro de Documentación de Arquitectura Latinoamericana. https://tinyurl.com/2upj8zer
Torres, C. (2020). Materialización del derecho a la ciudad 1. Bitácora Urbano-Territorial, 30(1), 7-14. https://tinyurl.com/4kk2tu72
UNESCO (2017). Educación para los Objetivos de Desarrollo Sostenible: Objetivos de aprendizaje. UNESCO. https://tinyurl.com/3kxxbpky
Voluntarios de Naciones Unidas (2020). Informe de síntesis mundial: Plan de acción para integrar el voluntariado en la Agenda 2030. Voluntarios de Naciones Unidas. https://tinyurl.com/2djrecbv
Voluntarios de Naciones Unidas (2022). Informe del estado del voluntariado en el mundo 2022: Crear sociedades igualitarias e inclusivas. Voluntarios de Naciones Unidas. https://tinyurl.com/mrjm8aap
Declaración de conflicto de intereses
Las autoras declaran que no existe ningún conflicto de intereses.
Declaración de contribución de la autoría
Ambas autoras contribuyeron significativamente en todas las etapas de conceptualización y desarrollo de la investigación y redacción del manuscrito.
Declaración de ética
Las autoras declaran que el trabajo cumple con las directrices éticas internacionales aplicables a la disciplina, incluyendo el consentimiento informado de quienes participaron en la investigación.
Maruri Arana & Pérez Cano. (2024). Oportunidad de inserción del voluntariado en la educación universitaria en arquitectura: Experiencia de dos proyectos en Lunsar, Sierra Leona Revista Andina de Educación 8(1), 000801. Published under license CC BY-NC 4.0